Detektor kouře EL HOME SD-87A2
Kód: 55436Detailní popis produktu
Detektor kouře EL HOME SD-87A2
Zabezpečte svůj domov pomocí pokročilé technologie detekce kouře!
Detektor kouře El HOME SD-87A2 je nepostradatelným zařízením v každé domácnosti - můžete si být jisti, že v případě požáru budete okamžitě varováni. Mnohá rizika, jako je například požár, nelze předvídat, ale se správnou ochranou můžete účinně chránit sebe i své blízké. Díky minimalistickému designu se skvěle hodí do každého interiéru a díky napájení z baterie bude fungovat bez ohledu na přístup k elektřině.
Proč byste měli mít doma detektor kouře?
Statistiky hovoří jasně - rychle zjištěný kouř může zabránit tragédii a umožnit bezpečnou evakuaci. Použití nejmodernějších optických senzorů umožňuje okamžitou detekci nebezpečí, a to dokonce během několika sekund. Detektor kouře SD-87A2 je mimořádně citlivý a spolehlivý, takže se můžete cítit bezpečně s vědomím, že hrozba bude rozpoznána, jakmile se objeví.
Hlavní vlastnosti a funkce detektoru kouře EL HOME SD-87A2:
- Optická a akustická signalizace - V případě detekce kouře vydá jednotka hlasitý zvukový signál o síle 85 dB a červené světlo LED, což zajistí účinný poplach i ve velkých místnostech.
- Napájení z baterie -umožňuje instalaci detektoru v optimální poloze v místnosti a poskytuje ochranu i v případě výpadku napájení ze sítě.
- Pokročilá diagnostika - Senzor SD-87A2 se sám monitoruje a upozorňuje uživatele na poruchu nebo vybitou baterii.
- Tlačítko "TEST - slouží k otestování zařízení, zda je se senzorem vše v pořádku.
- Estetický plášť - kryt v neutrální bílé barvě a malé rozměry snímače dokonale zapadnou do každého interiéru bez ohledu na styl.
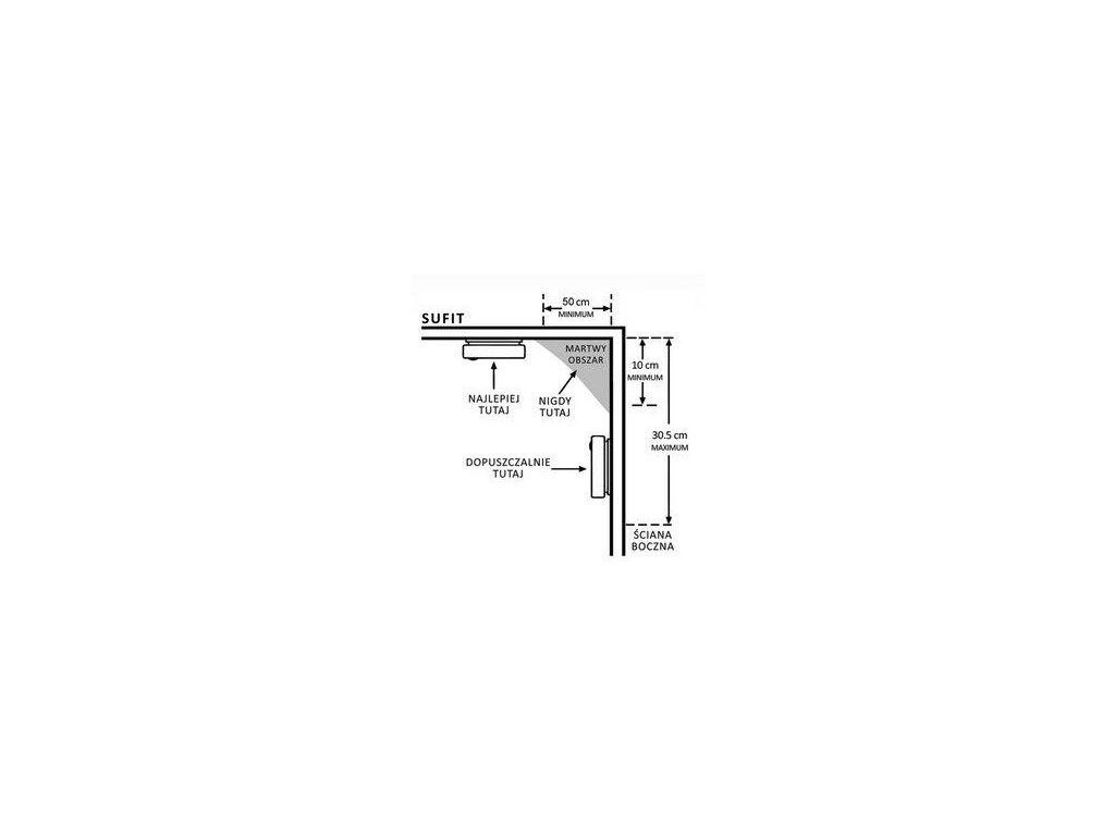
Volba místa instalace detektoru kouře
Kouř se spolu s teplým vzduchem a dalšími produkty spalování dostane nejkratší cestou ke stropu, horizontálně se rozšíří po jeho povrchu a poté začne klesat. Proto je nejvhodnějším místem pro instalaci detektoru střed stropu, protože je to nejbližší bod k jakémukoli místu v místnosti.
Při instalaci detektoru na strop jej umístěte alespoň 50 cm od boční stěny. Pokud není možné umístit hlásič na strop, je přípustná instalace zařízení na stěnu.
Při montáži detektoru na stěnu by měl být detektor namontován na vnitřní stěnu. Minimální vzdálenost horního okraje hlásiče od stropu by měla být 10 cm. Maximální vzdálenost spodní hrany přístroje nesmí být větší než 30 cm.
Zásady nasazení detektorů
První hlásič jako primární ochrana by měl být instalován na chodbě v bezprostřední blízkosti ložnic. Ložnice jsou obvykle umístěny nejdále od únikové cesty, proto je třeba usilovat o ochranu únikové cesty.
Pokud je v bytě nebo domě více ložnic, měly by být pro optimální ochranu instalovány další hlásiče ve všech ložnicích v každém patře budovy.
V bytě a vícepodlažním domě by měl být na každém patře umístěn alespoň jeden detektor. Hlásiče by měly monitorovat schodiště, protože funguje jako "přirozený komín" pro kouř a teplo.
Detektor kouře by měl být umístěn také v každé místnosti, kde jsou v provozu elektrické spotřebiče (např. přenosné ohřívače, elektrické deky a zvlhčovače vzduchu) nebo kde se kouří cigarety.
Specifikace:
- Napájecí napětí9 V DC
- Ochranný faktor IP20
- Typ senzoru fotooptické
- Typy zjištěných hrozeb kouř
- Typ napájení Baterie
- Spotřeba proudu senzoru - pohotovostní režim / alarm <15μA / <25mA
- Doporučené místo instalace stropy, vnitřní prostory
- Maximální úroveň hlasitosti85 dB / 3 m
- Detekční rozsah senzoru cca 20-25 m²
- Ochranný faktor krytu IP20
- Vlhkost ≤ 93 % RELATIVNÍ VLHKOSTI
- LCD displej Ne
- Testovací tlačítko Ano
- Indikace slabé baterie (nebo výpadku napájení) Ano
- Signalizace poruch Ano
- Teplotní pracovní rozsah snímače 0 °C ~ +40 °C
- Rozměry snímače (V x Š x H) ø100 x 34 mm
- Čistá hmotnost snímače 80 g
K senzoru jsou přiloženy pokyny
Doplňkové parametry
| Kategorie: | Alarmy |
|---|---|
| Záruka: | 2 roky |
| Hmotnost: | 0.08 kg |
| EAN: | 5905548279503 |
| Certifikace a schválení: | EN 14604:2005, EN 14604:2005/AC:2008 |
| Instalace detektoru kouře: | Pro omítku |
| Použití senzoru: | Samostatný senzor |
| Signalizace poplachu: | Akustický 85dB a optický |
| Technologie senzorů: | Fotooptika |
| Tlačítko HUSH: | Ne |
| Tlačítko TEST: | Tak |
| Vlhkost: | ≤ 93 % RELATIVNÍ VLHKOSTI |
| Výstup pro poplašný systém.: | Ne |
Hodnocení produktu
Buďte první, kdo napíše příspěvek k této položce.
Diskuze
Buďte první, kdo napíše příspěvek k této položce.
